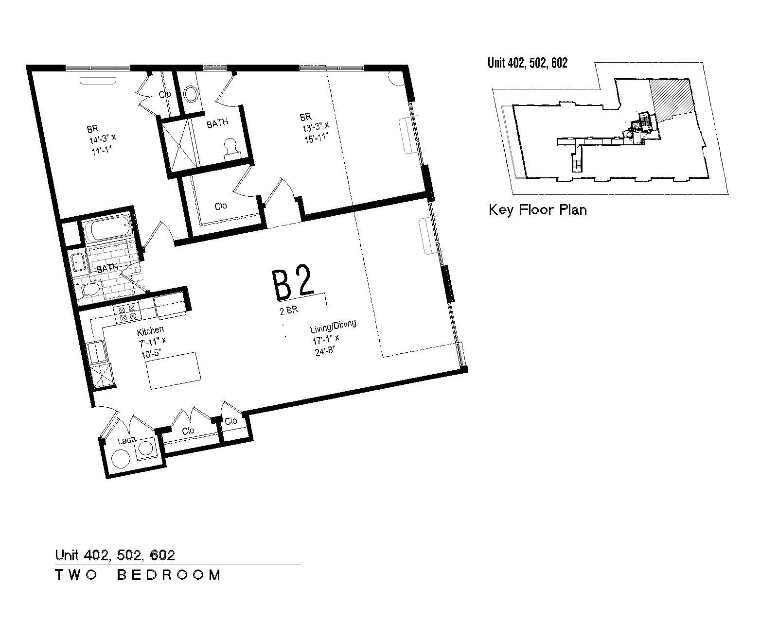
Floor Plans

 

Apartments are available in one and two bedroom configurations. Browse the flo0r plans below, choose the one you prefer, and inquire. (Use arrows to see additional layouts.)